D1060SQ/1300sq/1500sq/Mesin pemotongan mati automatik 1650sq
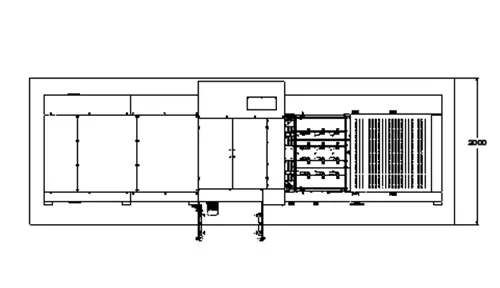
Lukisan pemasangan D1060sq
Feida, setiap bahagian penghantaran
* Teknologi Pengilangan Eropah Precision Feida Head Card, Multi Board Grey dan Grey-tujuan.
* FSuction kami empat hantar, (lebih daripada 1300 empat sedutan lima hantar) boleh diselaraskan mengikut sudut dan ketinggian sedutan ubah bentuk kertas
* UMekanisme penerima kertas Nique, sesuai untuk ubah bentuk kertas yang berbeza.
* High-Kepala Feida kelajuan diperbuat daripada aloi aluminium khas, semua bahagian diimport.
* PSuis pemakanan aper menghalang palsu berikut kertas
* Dterbang terbang-alat pengesanan perlanggaran kepala
* Main dan kertas makan sekunder bukan-berhenti bertukar
* A set pra-Mekanisme kertas pengekodan adalah pilihan
* Fish-pemakanan kertas skala, lancar dan tepat
* PJadual Aper baik -baik saja-mekanisme penalaan, bukan-berhenti pelarasan.
Butiran mesin ---- Prinsip mod kerja bahagian makan kertas

Pendirian makanan kertas
* Sistem Kawalan Lanjutan digunakan untuk mengawal peranti kelajuan pemakanan kertas untuk membuat basi penghantaran kertas dan mengurangkan perlanggaran.
* Pengesan berganda fotoelektrik.
* Import Kertas Penghantar Sabuk.
* Ultra-Pakai roda pengangkutan kertas poliuretana tahan.
* Roda getah laras dan roda berus memastikan kedudukan yang tepat untuk kembali dan pulangan sisi ketibaan.

Depan /tolok sampingan
* Pra-Ujian memastikan kadar ketibaan kertas.
* Menggunakan push ganda kiri dan kanan-Tarik alat pengukur untuk memenuhi keperluan pendaftaran percetakan yang berbeza.
* Lembaran lembaran lembaran kertas, seragam dan daya yang boleh dipercayai.
Butiran mesin ---- Prinsip mod kerja pemotongan mati


Bahagian pemotongan mati
* Nikel-Chromium-Molybdenum-Gold Steel Crankshaft dengan proses khas untuk keluli yang diimport dari Jerman.
* Taiwan mengimport ultra-Pakai-Gear cacing tahan dan cacing.
* Templat Templat Mudah dan Cepat Peranti.
* Sistem pelinciran bekalan minyak yang kuat.
* Mekanisme sekejap -sekejap 240 darjah ketepatan.
* Peranti penguncian pneumatik adalah selamat dan pantas.
* Sendi berputar berkelajuan tinggi.
* Tekanan maksimum ialah 300 tan (Tekanan maksimum jenis akhbar ialah 600 tan).
* Menggunakan Motor Utama Honeywell Lanjutan (konfigurasi pilihan), kelajuan pemotongan mati boleh mencapai 7500 helai per jam.
* Mati-bingkai plat pemotongan mengamalkan sistem kedudukan pertengahan dengan baik-peranti penalaan.
* Dwi-Skrin warna menunjukkan keadaan kerja mesin pada bila -bila masa.
Reka bentuk untuk penghapusan sisa
Pembersihan tengah terutamanya membersihkan lubang dan tingkap, kurungan boleh ditarik keluar dari mekanisme, memasang plat penjelasan adalah cepat dan mudah, struktur penjelasan mengamalkan reka bentuk tiga bingkai atas, tengah dan bawah, mengikut keperluan mati-Produk pemotongan, anda boleh memilih penjelasan punch atau penjelasan templat, templat penjelasan mengamalkan pusat kaedah kedudukan, mudah untuk menukar plat, kedudukan yang tepat, operasi lancar, bingkai penjelasan atas dan bawah satu set masing -masing; Operasi keseluruhan peralatan adalah mudah, tahap automasi yang tinggi, meningkatkan kapasiti pengeluaran untuk mengurangkan kos dan intensiti buruh. Ia mudah untuk beroperasi dan sangat automatik, yang meningkatkan kapasiti pengeluaran dan mengurangkan kos dan intensiti buruh.
Butiran mesin ---- Mod Kerja Prinsip Bahagian Elektrik

* Seluruh mesin mengamalkan Amerika Meiji dan Perancis Schneider Electric. Komponen untuk memastikan operasi mesin yang stabil.
Butiran mesin ---- Prinsip mod kerja kertas yang menerima kertas
Jabatan Menerima
Unit pelucutan

Ia boleh dikendalikan oleh suis yang sepadan pada papan kunci, dilengkapi dengan penggantian bahagian siap dan bahagian pembukaan, dan boleh beralih antara penuh dan separuh-penyingkiran.